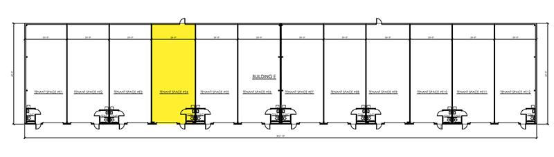
10 Nutmeg Dr, Ellington, CT - E4

Contact us for more detailed information about this property.

Amenities
  • Additional Outside Storage Available
  • Bathroom
  • 120/240 Single-Phase Power
  • 12x14 Overhead Door
  • 3x7 Mandoor
  • Outside Parking
  • Natural Gas Heat Available
  • Sewer & Water Available
Unit Location on Property
E-4